地图找房
焦房研究
手机网站
律师在线
预售证查询
焦房电商
我要问房
新房群:123160233
家装群:128821500
焦作房产网-焦作信息港房产频道-焦作房地产网-焦作二手房-焦作房地产门户
楼 盘
二手房
租 房
中 介
首页
新房
楼盘
优惠
导购
数据
回顾
独家
二手房
家装
视频
看房团报名
首页
资讯
新房
楼盘
优惠
导购
数据
回顾
独家
二手房
专题
家装
视频
看房团报名
金德利公馆
已售罄
更新日期:
2024-02-03
访问:
人次 评论: 篇 相册图片:
项目首页
基本信息
户型展示
楼盘相册
楼盘视频
楼盘地图
楼盘动态
在线问答
预售证查询
组团购房
收藏楼盘
项目首页
基本信息
户型展示
楼盘相册
楼盘视频
楼盘地图
楼盘动态
在线问答
预售证查询
组团购房
收藏楼盘
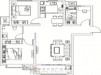
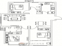
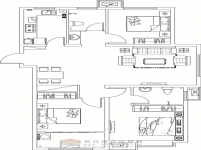
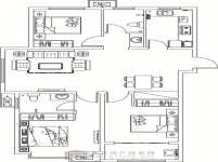
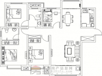
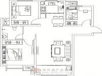
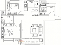
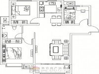
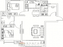
金德利公馆7#3单元东户三室两厅两卫130.06㎡
2017-06-02 17:41:03上传
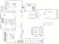
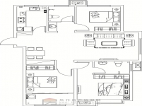
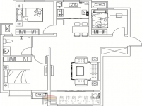
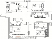
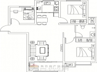
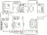
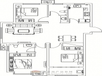
金德利公馆7#3单元中户三室两厅一卫110.3㎡
2017-06-02 17:40:09上传
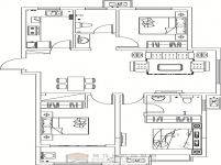
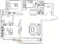
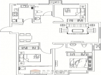
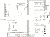
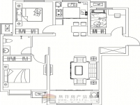
金德利公馆7#3单元西户四室两厅两卫155.59㎡
2017-06-02 17:38:44上传
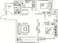
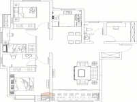
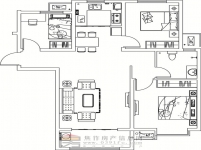
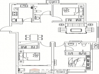
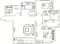
金德利公馆7#2单元东户三室两厅一卫112.31㎡
2017-06-02 17:37:41上传
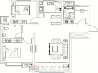
金德利公馆7#2单元中户三室两厅一卫109.53㎡
2017-06-02 17:36:35上传
金德利公馆7#2单元西户三室两厅一卫114.72㎡
2017-06-02 17:35:41上传
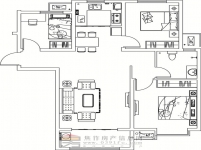
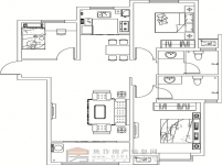
金德利公馆7#1单元东户三室两厅两卫127.48㎡
2017-06-02 17:34:35上传
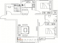
金德利公馆7#1单元中户两室两厅一卫84.07㎡
2017-06-02 17:33:22上传
金德利公馆7#1单元西户三室两厅一卫112.87㎡
2017-06-02 17:31:18上传
金德利公馆6#西户三室两厅两卫127.89㎡
2017-06-02 17:30:04上传
金德利公馆6#西户三室两厅一卫108.57㎡
2017-06-02 17:29:02上传
金德利公馆6#西户四室两厅两卫147.66㎡
2017-06-02 17:27:02上传
金德利公馆5#东户三室两厅两卫126.29㎡
2017-06-02 17:25:24上传
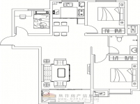
金德利公馆5#中户两室两厅一卫82.43㎡
2017-06-02 17:24:20上传
金德利公馆5#西户三室两厅一卫110.83㎡
2017-06-02 17:22:30上传
金德利公馆4#西户三室两厅两卫126.64㎡
2017-06-01 17:36:58上传
金德利公馆4#中户两室两厅一卫82.4㎡
2017-06-01 17:36:01上传
金德利公馆4#东户三室两厅一卫111.04㎡
2017-06-01 17:34:33上传
金德利公馆4#商业
2017-06-01 17:30:58上传
金德利公馆3#西户三室两厅两卫142.28㎡
2017-06-01 17:23:17上传
金德利公馆3#东户三室两厅两卫141.32㎡
2017-06-01 17:16:05上传
首页
上一页
1
2
下一页
尾页
户型
全部
一室
两室
三室
四室
五室
别墅
面积
全部
50㎡以下
50㎡-80㎡
80㎡-100㎡
100㎡-120㎡
120㎡-144㎡
144㎡-160㎡
160㎡-180㎡
180㎡-200㎡
200㎡以上
服务条款
法律声明
意见反馈
免责声明
人才招聘
广告发布
联系我们
关于我们
客服电话:0391-8768882 客服QQ:1287642365
copyright ©2010 焦作房产网版权所有
豫ICP备2026008082号-1
豫公网安备41080202000332号
焦作房产网(焦作沃家网络信息科技有限公司)